4 Bedroom
1 Bathroom
1,618 sqft
Fireplace
Forced Air
Waterfront
$324,000.00
Rare 0.53 acre Fraser River waterfront property in the quiet community only 19 minutes from PG city center. This solid rancher/bungalow features 3 bedrooms, 1 bathroom, and amazing original hardwood flooring throughout living areas, with durable linoleum in the kitchen. Enjoy morning & evening coffees on the enclosed porch overlooking the Fraser River. Newer high-efficiency furnace & newer septic system (approx 7 yrs new). The basement with many windows is partly finished with wood-finish walls and a cozy brick fireplace with insert, offering a perfect rec room or workshop. The separate outside basement entrance could make for easy access to the basement. Enjoy a serene rural lifestyle with fence garden area & greenhouse. Buyer to verify all information if deemed important to them. (id:45575)
Property Details
|
MLS® Number
|
R3104611 |
|
Property Type
|
Single Family |
|
View Type
|
View |
|
Water Front Type
|
Waterfront |
Building
|
Bathroom Total
|
1 |
|
Bedrooms Total
|
4 |
|
Amenities
|
Fireplace(s) |
|
Basement Development
|
Partially Finished |
|
Basement Type
|
N/a (partially Finished) |
|
Constructed Date
|
1956 |
|
Construction Style Attachment
|
Detached |
|
Fireplace Present
|
Yes |
|
Fireplace Total
|
2 |
|
Foundation Type
|
Concrete Perimeter |
|
Heating Fuel
|
Natural Gas |
|
Heating Type
|
Forced Air |
|
Stories Total
|
2 |
|
Size Interior
|
1,618 Sqft |
|
Total Finished Area
|
1618 Sqft |
|
Type
|
House |
Parking
Land
|
Acreage
|
No |
|
Size Irregular
|
0.53 |
|
Size Total
|
0.53 Ac |
|
Size Total Text
|
0.53 Ac |
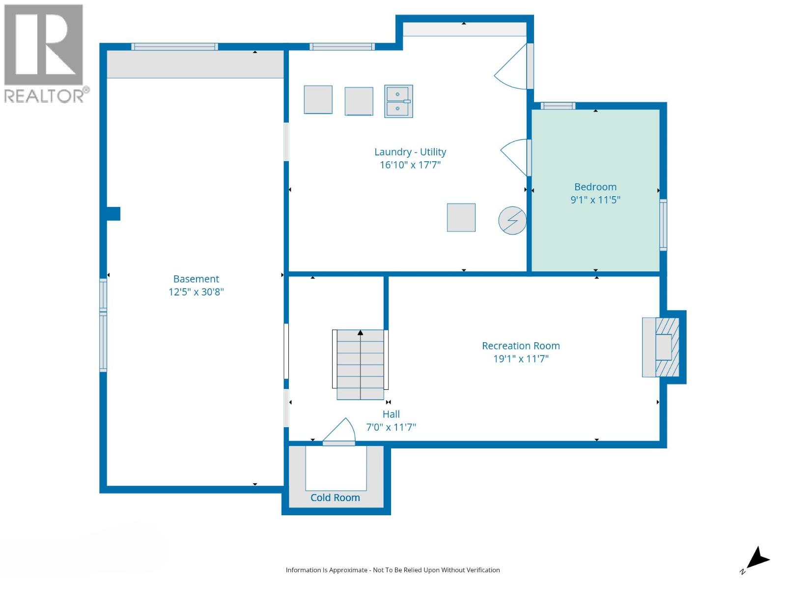
Rooms
| Level |
Type |
Length |
Width |
Dimensions |
|
Basement |
Bedroom 4 |
9 ft ,1 in |
11 ft ,5 in |
9 ft ,1 in x 11 ft ,5 in |
|
Basement |
Laundry Room |
16 ft ,1 in |
17 ft ,7 in |
16 ft ,1 in x 17 ft ,7 in |
|
Basement |
Recreational, Games Room |
19 ft ,1 in |
11 ft ,7 in |
19 ft ,1 in x 11 ft ,7 in |
|
Basement |
Other |
12 ft ,5 in |
30 ft ,8 in |
12 ft ,5 in x 30 ft ,8 in |
|
Main Level |
Foyer |
6 ft ,9 in |
3 ft ,6 in |
6 ft ,9 in x 3 ft ,6 in |
|
Main Level |
Living Room |
19 ft ,1 in |
13 ft ,8 in |
19 ft ,1 in x 13 ft ,8 in |
|
Main Level |
Kitchen |
16 ft ,5 in |
9 ft ,8 in |
16 ft ,5 in x 9 ft ,8 in |
|
Main Level |
Dining Room |
9 ft |
10 ft ,7 in |
9 ft x 10 ft ,7 in |
|
Main Level |
Primary Bedroom |
13 ft ,8 in |
12 ft ,4 in |
13 ft ,8 in x 12 ft ,4 in |
|
Main Level |
Bedroom 2 |
9 ft ,9 in |
10 ft ,8 in |
9 ft ,9 in x 10 ft ,8 in |
|
Main Level |
Bedroom 3 |
10 ft ,8 in |
7 ft ,1 in |
10 ft ,8 in x 7 ft ,1 in |
|
Main Level |
Enclosed Porch |
18 ft ,1 in |
9 ft ,2 in |
18 ft ,1 in x 9 ft ,2 in |
https://www.realtor.ca/real-estate/29531586/8105-shelley-townsite-road-prince-george